Stadthalle Gifhorn

Gifhorn - Gifhorn

Mehrzweckhalle mit Raum für individuelle Visionen

Eine mit moderner Technik ausgestattete Halle, die viel Raum für kreative Möglichkeiten bietet.

Im Umland
Indoor Location
1.600 Personen
  Durchschnitt

STADTHALLE GIFHORN - Vielseitige Eventlocation

Die STADTHALLE GIFHORN präsentiert sich als der größte Veranstaltungsort der Stadt und überzeugt als facettenreiche Location für Events aller Art. Ob Konzerte, Theateraufführungen, Messen, Konferenzen oder private Feiern – hier wird jede Veranstaltung zu einem besonderen Erlebnis. Unser engagiertes Team, bestehend aus erfahrenen Mitarbeitern, Auszubildenden und externen Dienstleistern, steht bereit, um die erfolgreiche Organisation und Durchführung Ihrer Events zu gewährleisten.

Perfekte Räumlichkeiten für Jeden Anlass
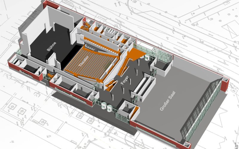
Das im Jahr 2006 eröffnete Gebäude beeindruckt mit einem 850 Quadratmeter großen, variabel aufteilbaren Mehrzwecksaal, einem Theatersaal mit 538 Plätzen und modernster Bühnentechnik, einer Studiobühne, zwei Konferenzräumen und einem lichtdurchfluteten Foyer mit zwei Bars. Roth Catering, unser gastronomischer Partner, sorgt für ein exklusives kulinarisches Angebot.

Beratung für Ihr Perfektes Event
Egal, ob Konzert, Messe, Konferenz oder private Feier – wir unterstützen Sie bei der Planung Ihrer Veranstaltung. Unsere erfahrenen Mitarbeiter stehen Ihnen mit Rat und Tat zur Seite, beraten Sie über unsere vielseitigen Räumlichkeiten und helfen Ihnen, die passende Form für Ihre Wünsche zu finden.

Tagungen, Kongresse und Hybrid-Veranstaltungen
Als optimale Wahl für Tagungen und Kongresse in der Region Braunschweig-Wolfsburg-Gifhorn bieten wir maßgeschneiderte Lösungen. Planen Sie eine hybride oder digitale Veranstaltung? Vertrauen Sie auf die vielseitige STADTHALLE GIFHORN für unvergessliche Momente und erfolgreiche Events.

Weiterlesen

Rahmendaten

Eventlocation
Festsaal / Ballsaal
Messehalle
Tagungs- Meetingraum
Tagesveranstaltung
Abendveranstaltung
Wochentags
Wochenende

Lage und Umgebung

Zentral
Im Umland
Indoor

Eventlocation Flächen

  • Stehend
  • Parlament
  • Gala
  • Bankett
  • UForm
  • Reihen
Raumname
1/2 Großer Saal 425 188 425 210 69 800 180
Foyer unten 350 450
Theaterbühne 280 100 199 120 350
1/3 Großer Saal 255 120 280 150 63 510 120
Foyer oben 250
Konferenzraum I 59 35 20 21 40 18
Theatersaal 550 538
2/3 Großer Saal 510 244 560 230 78 1000 240
Großer Saal 850 480 850 620 1600 420
Konferenzraum II 40 35 20 21 40 18

Technik

Audio-Technik
Beamer / Leinwand
Bühne möglich
DJ Technik
Licht-Technik
Starkstrom-Anschluss
Wlan

Ausstattung und Merkmale

Bodenbelag Parkett
Bodenbelag sonstiges
Heizung vorhanden
LKW Anfahrt
Mit Personal buchbar
Nebenräume vorhanden
Parkplätze
Tageslicht
Tanzfläche vorhanden
WCs
Übernachtungsmöglichkeiten (vorhanden / in der Nähe)

Anlässe

Hochzeit
Firmenfeier
Meeting / Konferenz / Tagung
Geburtstag / Party
Weihnachtsfeier
Silvesterfeier
Produktpräsentation
Gala
Incentive
Messe
Konzert

Grundrisse

Locations in der Umgebung

Zurück