Isanga Lounge

Augsburg - Lechhausen

Die außergewöhnliche Lounge

Ihre Location für Incentives, Firmenevents und Privatveranstaltungen inkl. Weinverköstigungen und Kochevents

Zentrale Lage
Indoor Location
200 Personen
  Durchschnitt

Rahmendaten

Club / Bar
Eventlocation
Industrielocation
Kochstudio
Kongresszentrum
Messehalle
Tagungs- Meetingraum
Abendveranstaltung
Tagesveranstaltung
Wochenende
Wochentags

Lage und Umgebung

Zentral
Indoor

Eventlocation Flächen

  • Stehend
  • Parlament
  • Gala
  • Bankett
  • UForm
  • Reihen
Raumname
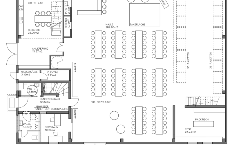
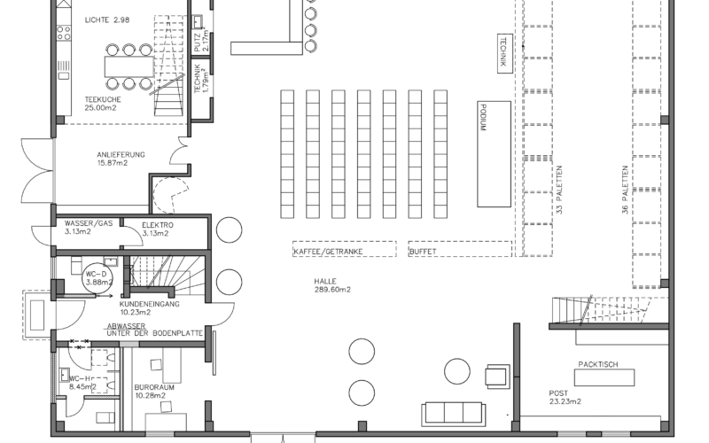
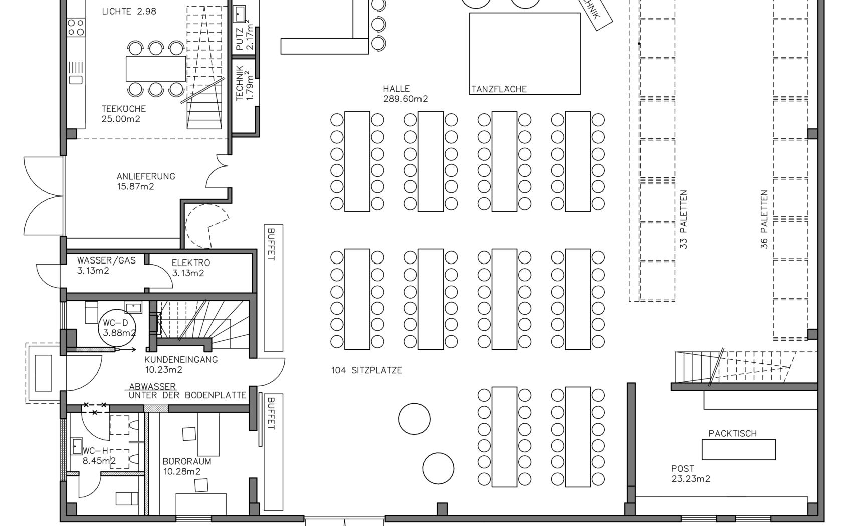
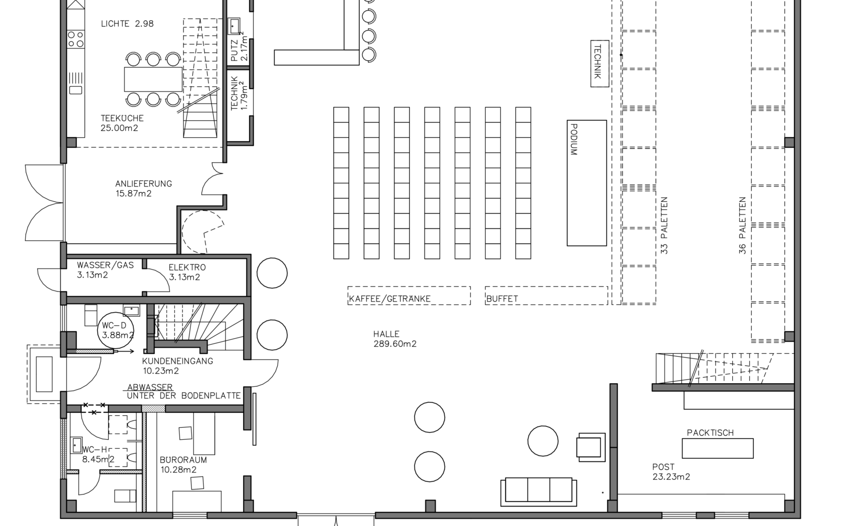
Eventlocation 289 100 80 120 60 199 60

Technik

Audio-Technik
Beamer / Leinwand
Bühne möglich
DJ Technik
Licht-Technik
Starkstrom-Anschluss
Wlan

Ausstattung und Merkmale

Barrierefreiheit
Bodenbelag Beton
Bodenbelag sonstiges
Cateringfrei
Heizung vorhanden
Küche vorhanden
LKW Anfahrt
Mit Personal buchbar
Mobiliar vorhanden
Nebenräume vorhanden
Parkplätze
Tageslicht
Tanzfläche vorhanden
Vollverdunklung
WCs
Übernachtungsmöglichkeiten (vorhanden / in der Nähe)

Anlässe

Firmenfeier
Fotoshooting / Filmdreh
Gala
Hochzeit
Incentive
Konzert
Messe
Produktpräsentation
Silvesterfeier
Weihnachtsfeier
Meeting / Konferenz / Tagung
Geburtstag / Party
Party

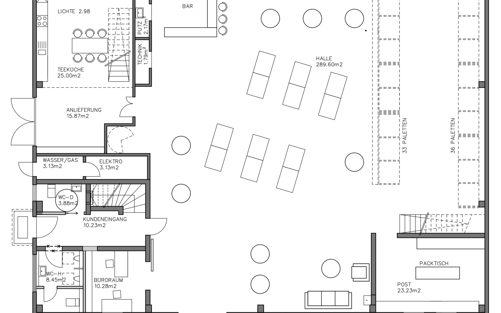
Grundrisse

Locations in der Umgebung

Zurück